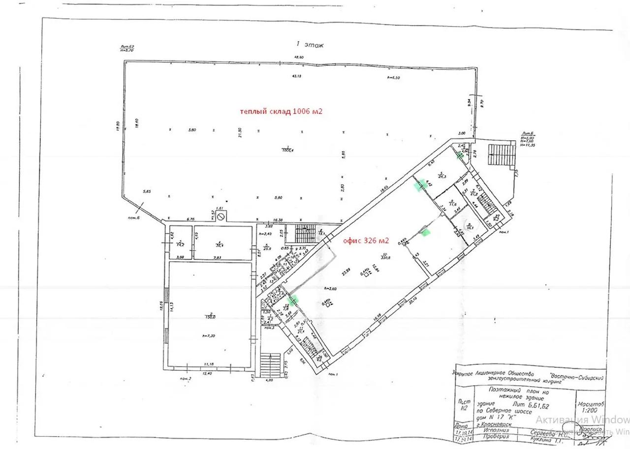
Сдам в аренду офис 326 м.кв.

на карте
Просмотров 7
228 200 руб. / мес
Красноярск , Центральный, Северное шоссе, д.влд17К
Арег
Показать телефон
назначения
Данные актуальны на 25.03.2026
Пожаловаться на объявление
Сдается в долгосрочную аренду отдельный первый этаж в трехэтажном здании. Прямая аренда от собственника, без посредников и комиссий. Прекрасное расположение на первой линии Северного шоссе — высокая проходимость и проезжаемость. Планировка и состояние: Тип планировки: Смешанная. Входная группа: Два отдельных входа с противоположных сторон здания (удобно для разделения потоков посетителей и персонала). Санитарные узлы: Собственные санузлы на этаже. Мокрая зона: Имеется техническая возможность организовать полноценную кухню. Ключевые преимущества объекта: Реклама: Возможность размещения информационных баннеров и вывесок прямо на фасаде здания (выход на оживленную трассу). Территория: Возможность уличного хранения материалов, готовой продукции или стройматериалов на прилегающей территории. Парковка: Бесплатная парковка для сотрудников и клиентов (большое количество машиномест). Микроклимат: В помещениях установлено кондиционирование. Коммуникации: Водоснабжение (ХВС) центральное. Электроснабжение: 25 кВт (есть техническая возможность увеличения мощности под ваши задачи). Звоните прямо сейчас, чтобы записаться на просмотр и обсудить условия въезда!

Дополнительная информация

Тип здания Торговый центр Класс БЦ - Этаж 1 Этажность 3 Количество комнат 3 Вход Общий Ремонт Без ремонта
Интернет Есть Кондиционер Есть Вентиляция Есть Пожарная сигнализация Есть Пропускная система - Охраняемая парковка Есть
Динамика изменения цен на рынке недвижимости ?

По городу Красноярск, в категории Офисная недвижимость » Офисы
За последние полгода средняя сумма аренды за кв.м. выросла на 8 руб. Колебание цен происходило от 548 руб. до 631 руб. На текущий момент наблюдается тенденция к росту цены.
Похожие объявления
Обновлено
30.01.2026
Фотографии
7
Объявление 733179
Красноярск, Металлургов проспект, д.45А
374 732
руб. / мес Аренда
378.9 м2
Вход в личный кабинет